Home/ Products/ Grit Classifier
Grit Removal Equipment

Grit
Classifier

A shaftless screw grit classifier designed to receive grit-water slurry from cyclonic grit chambers or bridge-type suction grit removers, separate grit from water by gravity settling, and convey clean, dewatered grit to the collection bin — all in a fully enclosed, low-maintenance unit.

Models
–260 to –400
Capacity
5–35 m³/h
Grit Recovery
≥ 96%
Install Angle
25°
Grit Classifier

What Is A
Grit Classifier?

The Grit Classifier (砂水分离器) is a shaftless screw dewatering and classification machine used at municipal wastewater treatment plant grit removal stages. It receives grit-water slurry discharged from cyclonic grit chambers or bridge-type suction grit removers and separates the grit from the carrier water before disposal.

Grit-water slurry enters the unit from the top inlet of the separation trough. Grit particles settle by gravity to the bottom of the trough while the separated water overflows from the overflow outlet. The shaftless screw — driven by a shaft-mounted helical gear reducer — rotates at a low speed of approximately 4.8 r/min, progressively pushing the settled grit along the inclined U-trough (installed at 25°) toward the discharge outlet at the upper end. The dewatered grit falls into the collection bin for transport.

The fully enclosed design eliminates splashing and odor release, while the shaftless screw eliminates intermediate bearings — significantly reducing maintenance requirements compared to shafted classifier designs.

Performance Highlights
GRIT RECOVERY
≥ 96% recovery rate for particles ≥ 0.2 mm diameter — effective capture of the target grit fraction.
CAKE MOISTURE
Moisture content of discharged grit < 65% — sufficiently dry for direct transfer to collection cart without additional dewatering.
NO CIVIL EMBEDMENT
Frame fixed by expansion anchor bolts — no pre-embedded plates or cast-in components required. Simple to install and relocate.
Typical Applications
  • Matched with cyclonic grit chambers at municipal WWTP
  • Matched with bridge-type suction grit removers
  • Aerated grit chamber grit dewatering
  • Industrial wastewater grit classification and dewatering
  • Stormwater and combined sewer grit handling

Why Choose Our
Grit Classifier

01

Shaft-Mounted Helical Gearbox

Drive unit uses a shaft-mounted parallel-axis helical gear reducer — compact, smooth, and stable in operation. No separate coupling between motor and screw.

02

High Grit Recovery

Recovery rate ≥ 96% for grit particles ≥ 0.2 mm diameter. Gravity settling in the separation trough combined with slow screw conveyance ensures high capture of the target grit fraction.

03

Wear-Resistant U-Trough Liner

U-trough fitted with replaceable wear liner — high abrasion resistance against grit particles, long service life, and easy replacement without removing the spiral.

04

Fully Enclosed Operation

Completely enclosed structure eliminates grit splashing and odor release during operation — cleaner working environment and better operator conditions at headworks.

05

No Pre-Embedded Civil Works

Frame anchored by expansion bolts directly to existing floor slab — no pre-embedded plates or cast-in anchors required. Reduces civil engineering cost and simplifies installation.

06

Low Moisture Discharge

Discharged grit moisture content < 65% — suitable for direct collection and transport without additional dewatering equipment downstream.

How It Works

1

Receive

Grit-water slurry from the grit chamber air-lift or suction pump enters the classifier from the top inlet of the separation trough.

2

Settle

Grit particles settle by gravity to the bottom of the separation trough. Separated water overflows from the overflow outlet and returns to the inlet channel.

3

Convey

Shaftless screw rotates at ≈ 4.8 r/min, pushing settled grit progressively up the 25° inclined U-trough toward the discharge end, further draining moisture along the way.

4

Discharge

Dewatered grit (moisture < 65%) falls from the discharge outlet into a collection bin or cart for transport and disposal.

Technical Parameters &
Installation Dimensions

Parameter –260–300–350–400
Nominal Spiral Diameter D (mm)260300350400
Actual Spiral Diameter Φ (mm)235285320385
Capacity Q (m³/h)5–1212–2020–2727–35
Installation Angle α (°)25
Spiral Speed n (r/min)≈ 4.8
Motor Power N (kW)0.370.550.75
Grit Recovery (≥ 0.2 mm particles)≥ 96%
Discharge Moisture Content (%)< 65
ΦA — Trough Diameter (mm)220270320390
B — Trough Width (mm)260310345410
B₁ — Frame Width (mm)710
B₂ — Overall Width (mm)1,2001,3601,5001,800
B₃ (mm)B₂ + 80
DN₁ — Inlet Pipe (mm)100150200250
DN₂ — Return Pipe (mm)150200250300
L — Screw Length (mm)2,8003,0003,200
L₁ — Overall Length (mm)3,8404,3805,7606,150
L₂ — Base Length (mm)2,8002,8003,8003,800
H — Overall Height (mm)1,5501,7502,4002,550
H₁ — Inlet Height (mm)1,6001,7002,1502,150
Note: Frame fixed by expansion anchor bolts — no pre-embedded civil works required. DN₁ = grit slurry inlet; DN₂ = return water outlet back to inlet channel.

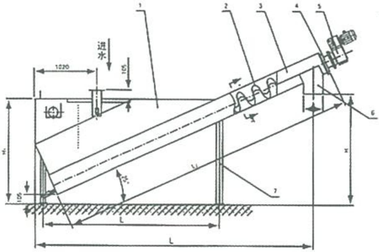
Installation Diagrams
& Components

Installation Diagram 1 Installation Diagram 2

Key Installation Notes

  • Installation angle: fixed at 25° to horizontal
  • Frame anchored by expansion bolts — no pre-embedded plates required
  • DN₁ inlet connects to air-lift riser pipe from grit chamber
  • DN₂ return water outlet connects back to inlet channel or wet well
  • Discharge end positioned above grit collection cart or bin
  • Adequate floor drainage required below the separation trough
Component Reference
1Separation Trough — Main receiving vessel where grit-water slurry settles by gravity
2Shaftless Spiral — Continuous helical flighting without center shaft, conveying settled grit up the inclined trough
3U-Trough Body — Inclined conveying trough (25°) housing the spiral and wear liner
4Bearing Housing — End bearing supporting the drive shaft at the upper drive end
5Drive Unit — Shaft-mounted helical gear reducer and motor driving the shaftless spiral at ≈ 4.8 r/min
6Grit Discharge Outlet — Upper-end outlet through which dewatered grit falls to collection bin
7Support Frame — Structural frame anchored to floor by expansion bolts; adjustable leg height
8Wear Liner — Replaceable UHMW-PE or equivalent liner inside U-trough protecting against abrasion from grit

Request A Quote
Or Technical Consultation

Tell us your grit chamber model, grit slurry flow rate, and site conditions — we’ll select the right classifier model and provide a complete system proposal.